L'atelier
Projets
Sélection
Sur mesure
L'atelier
Projets
Sélection
Sur mesure
ATELIER BOTEKO
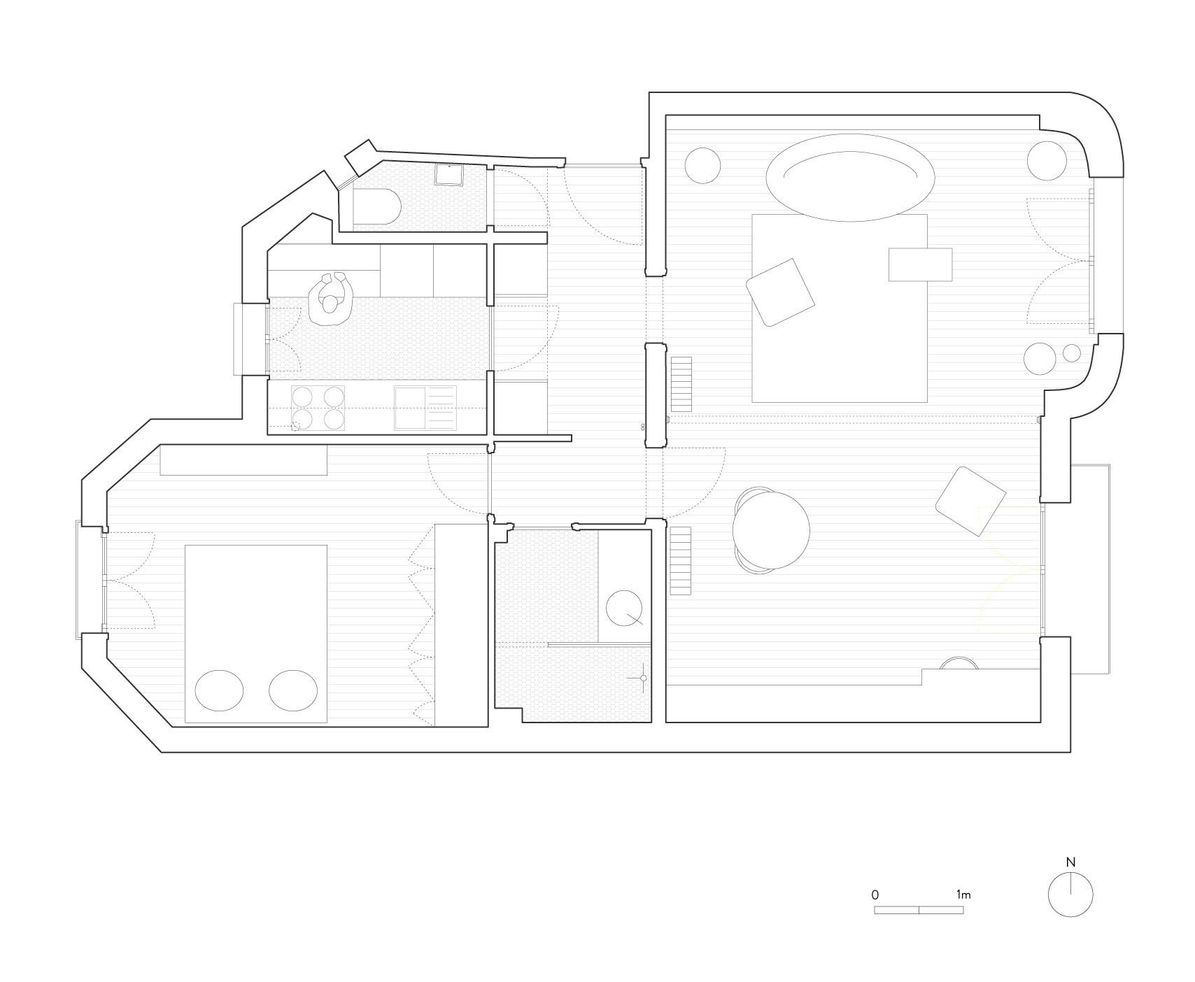
Marcadet
rénovation d'un appartement haussmannien
© photographe Daniele Rocco
Lieu :
Paris 20 ème /
C
omm
ande
:
privée /
Phase :
livré /
Surface :
72 m2 /
Montant HT :
n.c /
Entreprise :
ACCR
You may also like
Bretonnerie
2019
Pyrénées C
2019
Petit Musc D
2019
Tilleuls
2019
Mimosas
2019
Garches
2019
Gambetta
2024
Botzaris
2019
Michel
2024
Turenne
2019
↑
Back to Top