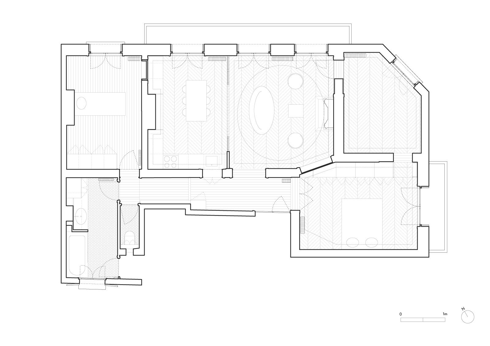
rénovation d'un appartement haussmannien
 
      
     L’appartement se situe au second étage d’un immeuble haussmannien. La répartition des pièces respecte le modèle-type de l’habitat haussmannien: une galerie d’entrée, une série de pièces en enfilades, un balcon filant...
La cuisine située au fond du couloir en retrait des pièces principales sera déplacée à proximité du séjour/
Une verrière en bois en écho avec les portes fenêtres existante permet de distinguer le séjour de la cuisine.
La galerie de l’entrée est traitée d’une seule couleur monochrome unifiant l’ensemble des murs et plafonds aux mobiliers et éléments existants (radiateurs en fonte, étagères, poignées de portes …). Le vert sombre transforme l’entrée et le couloir principal en véritable antichambre et fabrique ainsi un univers clos et intime.
© photographe Daniele Rocco 
Lieu : Paris 8 ème / Commande : privée / Phase : livré / Surface : 86,5 m2 / Montant HT : n.c /  Entreprise : ACCR
 
      
      
      
      
      
      
      
      
                                       
                                       
                                       
                                       
                                       
                                       
                                       
                                       
                                      