rénovation d'un appartement haussmannien
Le projet présente la rénovation d'un appartement situé au deuxième étage d'un immeuble haussmannien à Paris.
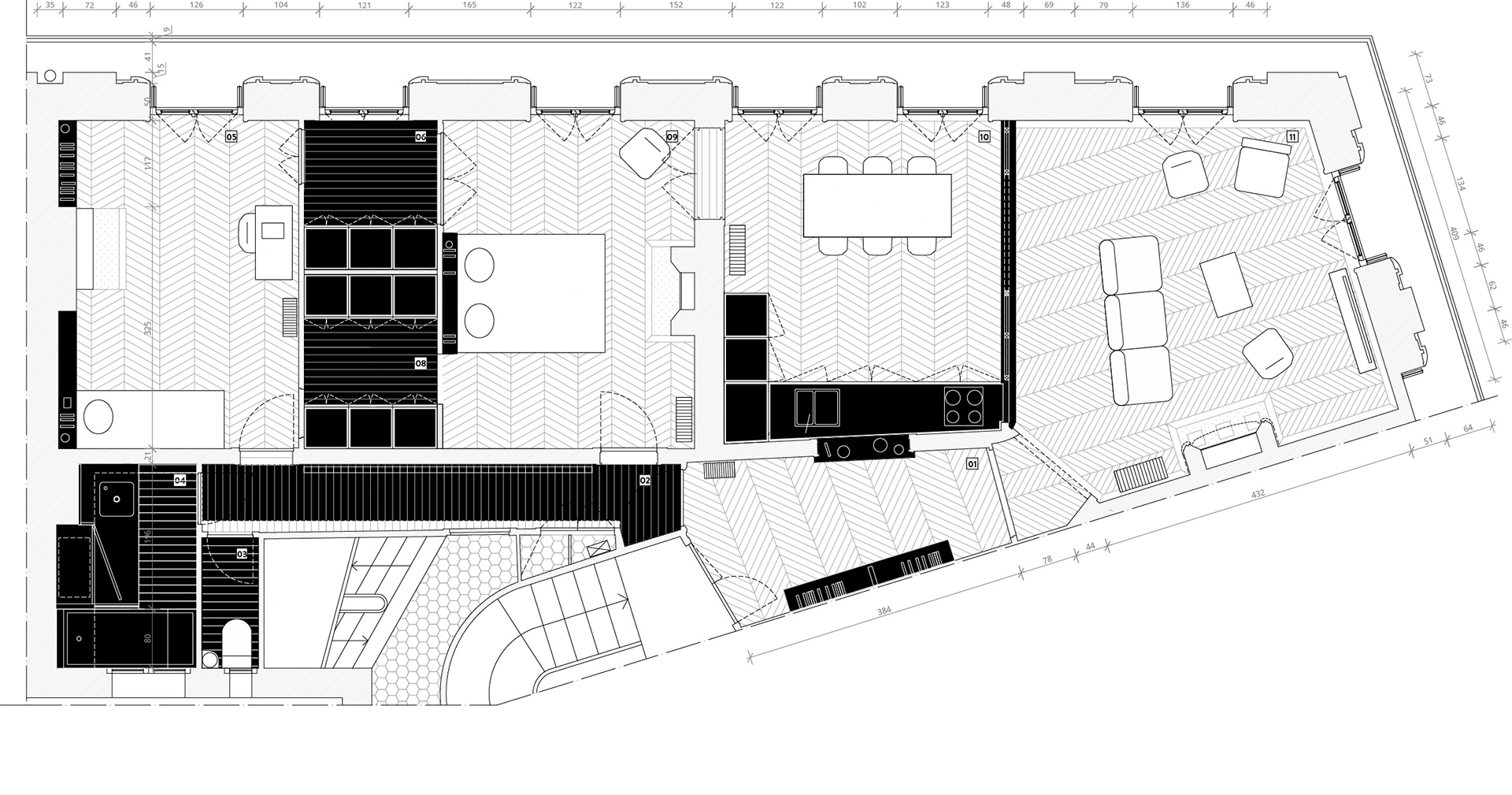
Le plan de l'appartement obéit à la règle haussmannienne: une galerie d'entrée, des pièces en enfilades, un balcon filant, des moulures au plafond, un parquet en pointes de Hongrie...
La cuisine originellement située au fond du couloir est déplacée à proximité du salon.
Afin de réunir la cuisine à la pièce principale, l'Atelier Boteko conçoit une paroi en bois et verre reprenant l'aspect des fenêtres existantes (montants en bois peints, proportion du vitrage  long et étroit ...) Cette paroi entre ainsi en écho avec les lignes de l'architecture du lieu. Un jeu de transparence et de perspective est créé vers l'ensemble des 9 portes fenêtres ouvertes sur un balcon filant.
© photographe Daniele Rocco 

Lieu : Paris 9 ème / Commande : privée / Phase : livré / Surface : 100 m2 / Montant HT : n.c /  Entreprise : ACCR

You may also like

Back to Top