rénovation partielle d'un appartement du XIXème siècle


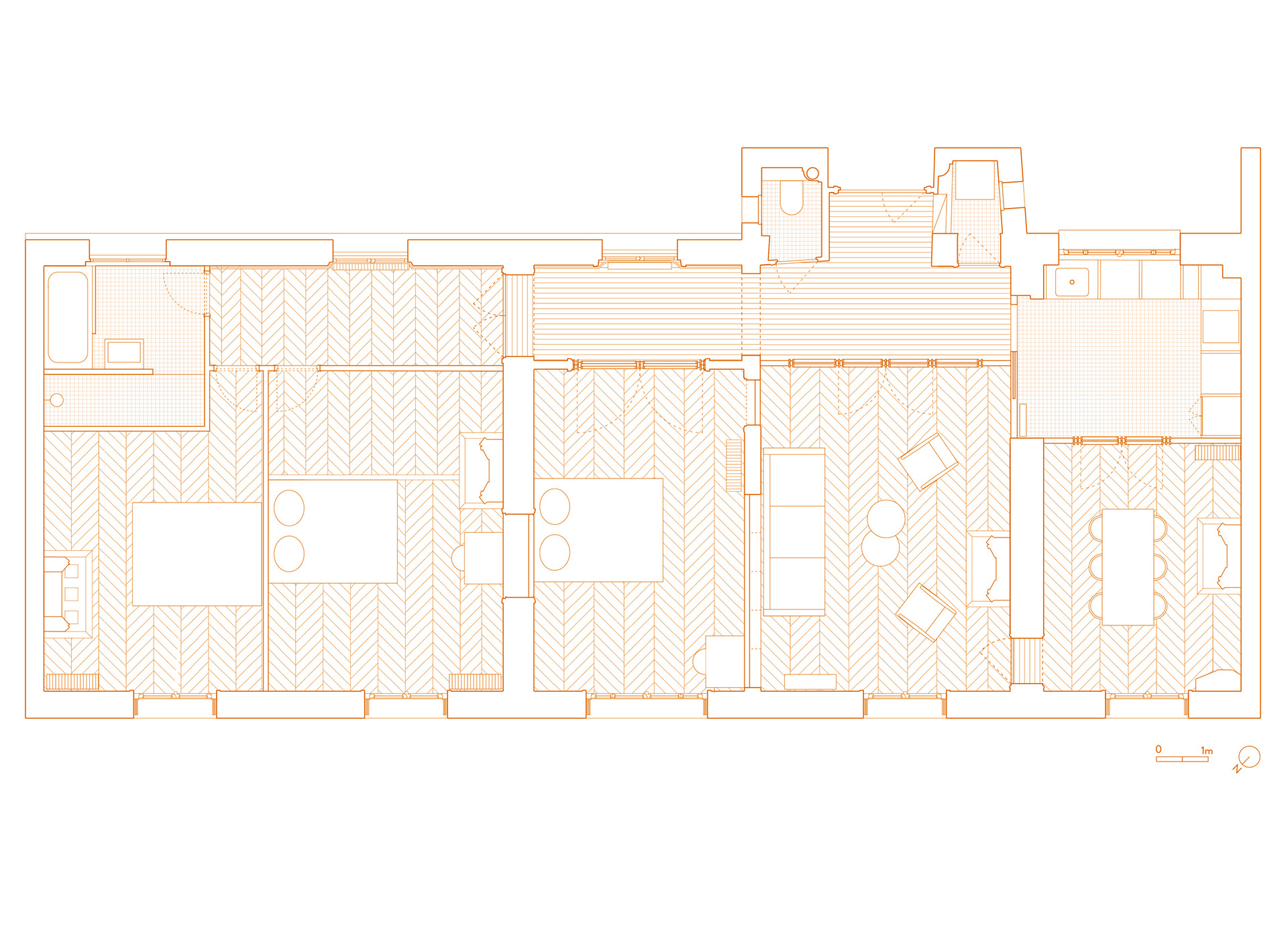
L’appartement rénové est de type T3 et se situe au 2 ème étage de l’immeuble. Le projet vise à mettre en valeur les éléments remarquables existants, en les rénovant et en les réinterprétant tout en restant dans le style élégant d'origine.
Notamment une figure distinctive sur place est cette grande ouverture en arche qui invite à entrer dans le salon.
Ce geste d'ouverture constituera le point de départ pour développer le style du projet. Ainsi lorsque le salon deviendra une chambre parentale, l'arche sera rénovée avec deux portes monumentales qui offriront l'intimité d'une chambre. De la même manière, ce motif sera repris et réinterpréter afin de proposer cette expérience à nouveau dans la salle à manger avec une petite arche et dans le nouveau salon avec une petite arche doublée.
Comme dans les projets antérieurs de ce bâtiment, l'objectif a été de revaloriser chaque élément notable d'époque; parquets en pointes de Hongrie poncés, quincaillerie des portes et huisseries brossées, moulures en plâtre reconstituées. Mais également dans l'organisation spatiale qui a été repensé pour garder l'enfilade et distribuer en un couloir chaque espace.
© photographe Daniele Rocco
Lieu : Paris 3ème / Commande : privée / Phase : livré 2021 / Surface : 120 m2 / Montant HT : n.c / Entreprise : ACCR

Ouverture en arche d'origine







